loader image
bigger 1900
1900
1600
1440
1280
1160
1024
940
850
767
600
480
360
320
ADJ
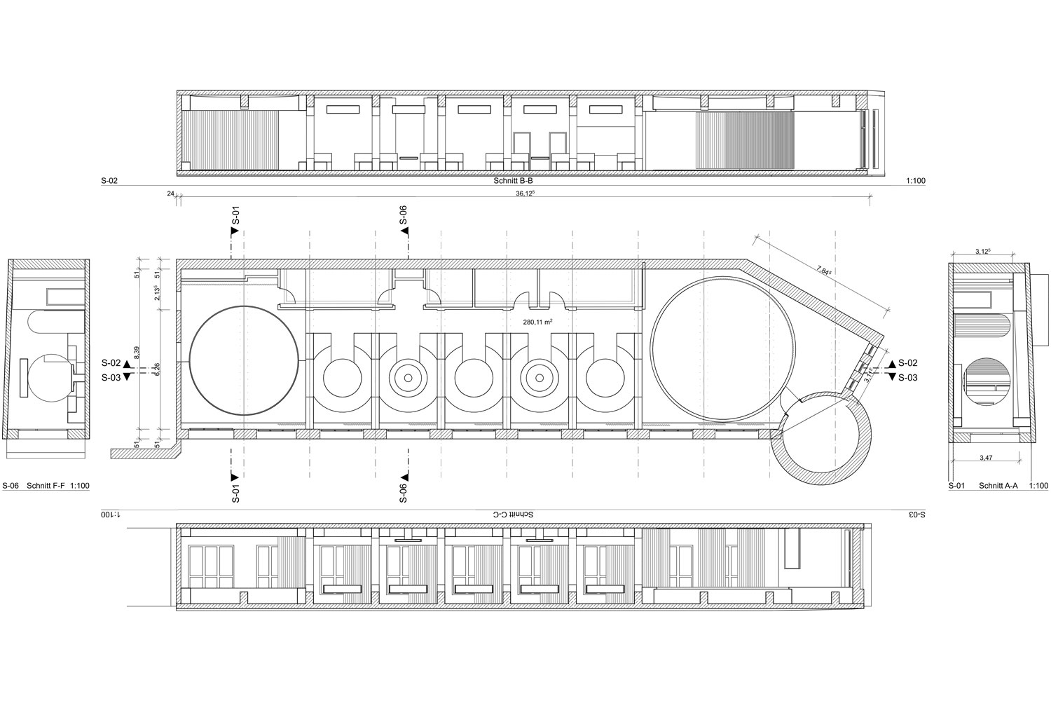
Umnutzung einer Büroetage in Berlin in Räume für Freizeit und Erholung für die Mitarbeiter eines Tech-Unternehmens. Ziel ist es, den Raum so (um-) zu gestalten, dass sich der fun-Bereich möglichst in allen Aspekten von den Arbeitsbereichen unterscheidet.

Eine spezielle Formensprache bindet die Gestaltung zusammen und schafft eine einzigartige ungewöhnliche Indoor-Landschaft. Die Kreisform nimmt Bezug auf einerseits die vorhandene Architektur andererseits auf das runde Logo des AG - Fenster, Steckdosen, Heizkörper werden durch raumhohe Vorhänge verborgen - Die Böden bekommen eine wohlige Oberfläche - in den Kabinetten entstehen gemütliche Sitz- und Liegelandschaften - Eine regelbare Beleuchtung inszeniert die Räume - Es entsehen ungewohne Raumfolgen und Durchblicke - Ein individuelles Farbkonzept und warmes Materialkonzept wird entwickelt - Die dominaten Deckenunterzüge werden durch die Innenwände kaschiert - raumhohe flexibel verfahrbare Vorhänge ermöglichen das Arrangement verschiedener Nutzungen im großen Gathering-Bereich.
Ort
Berlin
Entwurf
LKA-Berlin
Auftraggeber
ADJUST
Realisierung
2021
Bausumme
370.000 €